Here you can configure your e-chain system® individually. All entries and changes are taking over to the part list which is situated at the end of the page.
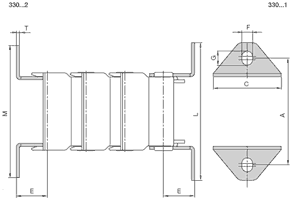
Series E333.32 - Chain for movement in 3 axes
1. Split KMA mounting brackets with integrated strain relief
2. Patented "push button principle"
3. Easy lengthening and shortening at any point
4. Different bend radii and types can be combined
5. Easy filling from 2 sides, "easy chain®" principle: Simply press cable in along the inner or outer radius
6. 3-axis movement for machinery of all kinds
7. Robot applications possible
8. if-Design award winner